Mobil båtløfter
En mobil båtheis er et spesialisert utstyr designet for å løfte og transportere båter, yachter eller andre vannscootere fra ett sted til et annet i en marina eller et båtverft. Denne typen talje gir en praktisk og effektiv løsning for båthåndtering og vedlikehold, som gir enkel tilgang til fartøyer for reparasjon, vedlikehold eller lagring.

Nøkkelegenskaper
Mobile båtheiser er spesialisert løfteutstyr designet for håndtering og transport av båter og yachter innenfor marinaer og båtverft. Nøkkelfunksjonene til mobile båtløftere inkluderer:
- Kapasitet Range: Mobile båttaljer kommer i en rekke kapasiteter for å håndtere ulike båtstørrelser. Kapasiteten er vanligvis spesifisert i form av maksimal løftevekt, med plass til små båter til store yachter.
- Allsidighet: Disse taljene er allsidige og kan brukes til flere formål, inkludert sjøsetting, henting og flytting av båter i en marina eller et båtverft. De kan håndtere en rekke båttyper og størrelser.
- Mobilitet: Utstyrt med hjul eller belter, er mobile båtløftere lett flyttbare innenfor marinaen eller båtverftet. Noen modeller kan ha en selvgående funksjon for bedre manøvrerbarhet.
- Løftemekanisme: Taljen bruker en pålitelig løftemekanisme drevet av elektrisk, hydraulisk eller en kombinasjon av begge systemene. Denne mekanismen inkluderer stropper, stropper eller løftearmer for å holde og løfte båten sikkert.
- Kontrollsystem: Et brukervennlig kontrollsystem er integrert i taljen, slik at operatørene kan kontrollere løfting, senking og bevegelse nøyaktig. Dette kan inkludere et kontrollpanel med knapper, spaker eller et digitalt grensesnitt.
- Sikkerhets egenskaper: Sikkerhet er en topp prioritet, og mobile båttaljer er utstyrt med ulike sikkerhetsfunksjoner, inkludert:
■Nødstoppknapper for umiddelbar stans av operasjoner.
■ Overbelastningsbeskyttelse for å hindre løfting utover taljens kapasitet.
■Sikre låsemekanismer for stropper eller stropper.
■Hørbare og visuelle alarmer for å varsle operatører og tilskuere.
- Tilpasningsevne til forskjellige vannscootere: Mobile båttaljer er designet for å romme forskjellige typer vannscootere, for eksempel seilbåter, motorbåter og yachter. Designet kan inkludere justerbare stropper eller armer for å passe til den spesifikke skrogformen.
- Holdbarhet og konstruksjon: Konstruert av robuste materialer som stål eller aluminium, er mobile båttaljer bygget for å tåle det marine miljøet og tung bruk. Rammen og komponentene er designet for holdbarhet og lang levetid.
- Værbestandighet: Mobile båttaljer er ofte bygget med værbestandige funksjoner for å tåle eksponering for saltvann, regn og andre miljøforhold som vanligvis finnes i marine miljøer.
- Enkelt vedlikehold: Produsenter designer disse taljene med tanke på enkel vedlikehold. De kan tilby tilgjengelige servicepunkter, klare retningslinjer for vedlikehold og støttetjenester for å sikre kontinuerlig pålitelighet til utstyret.
- Fjernbetjening (valgfritt): Noen moderne mobile båttaljer tilbyr fjernkontroll, slik at operatører kan kontrollere taljen på avstand. Dette kan øke sikkerheten og presisjonen under båthåndteringsoperasjoner.
- Tilpasningsalternativer: Produsenter kan tilby tilpasningsalternativer for å møte spesifikke kundekrav, for eksempel å tilpasse taljen for unike båtdesigner eller integrere tilleggsfunksjoner.

Deler og komponenter
En mobil båttalje er et komplekst maskineri, og det består av flere nøkkeldeler og komponenter som fungerer sammen for å løfte, transportere og håndtere båter. Her er en oversikt over hoveddelene og komponentene til en typisk mobil båttalje:
- Ramme: Rammen danner det strukturelle skjelettet til taljen, og gir støtte og stabilitet. Den er vanligvis laget av slitesterke materialer som stål eller aluminium. Utformingen av rammen tar hensyn til vektbærende kapasitet og den generelle stabiliteten til taljen.
- Løftemekanisme: Løftemekanismen er ansvarlig for å heve og senke båten. Den kan drives av elektriske motorer, hydrauliske systemer eller en kombinasjon av begge. Denne mekanismen inkluderer ofte vinsjer, trinser eller sylindre som er koblet til stropper, stropper eller løftearmer.
- Slynger eller stropper: Slynger eller stropper er komponentene som kommer direkte i kontakt med båtens skrog. De er festet til løftemekanismen og er ansvarlige for jevn fordeling av lasten under løfting. Slynger er vanligvis laget av sterke og slitesterke materialer for å sikre trygg og sikker løfting.
- Hjul eller spor: Mobile båttaljer er utstyrt med hjul eller belter for å lette bevegelse langs bakken. Avhengig av utformingen kan disse være konvensjonelle hjul eller spesialiserte hjul i marinekvalitet. Noen taljer er selvgående, noe som muliggjør enkel navigering innenfor en marina eller båtverft.
- Kontrollsystem: Kontrollsystemet gjør det mulig for operatøren å styre heising, senking og bevegelse av båtløfteren. Den inkluderer et kontrollpanel med knapper, spaker eller et digitalt grensesnitt. Kontrollsystemet er avgjørende for å sikre presisjon og sikkerhet under båthåndteringsoperasjoner.
- Sikkerhets egenskaper: Ulike sikkerhetsfunksjoner er integrert i taljen for å beskytte mot ulykker og utstyrsskader. Disse kan omfatte nødstoppknapper, overbelastningsbeskyttelse, hørbare alarmer, visuelle indikatorer og sikre låsemekanismer for stropper eller stropper.
- Strømkilde: Strømkilden gir energien som trengs for å betjene løftemekanismen. Mobile båttaljer drives vanligvis av elektrisitet eller hydrauliske systemer. Elektriske taljer brukes ofte for mindre kapasiteter, mens større taljer kan stole på hydraulisk kraft for sin styrke og pålitelighet.
- Fjernkontroll: Noen mobile båttaljer er utstyrt med fjernkontrollfunksjoner, slik at operatører kan kontrollere taljen på avstand. Fjernkontroll kan øke sikkerheten og presisjonen under båthåndteringsoperasjoner.
- Værbestandige komponenter: Gitt det marine miljøet er mange komponenter designet for å være værbestandige, med beskyttende belegg og materialer for å forhindre korrosjon og nedbrytning fra eksponering for saltvann og andre miljøfaktorer.
- Tilbehør: Avhengig av produsenten og spesifikke krav, kan mobile båttaljer leveres med ekstra tilbehør eller funksjoner, for eksempel justerbare armer for forskjellige skrogformer, belysning for natteoperasjoner eller spesialtilpassede redskaper for spesialiserte oppgaver.

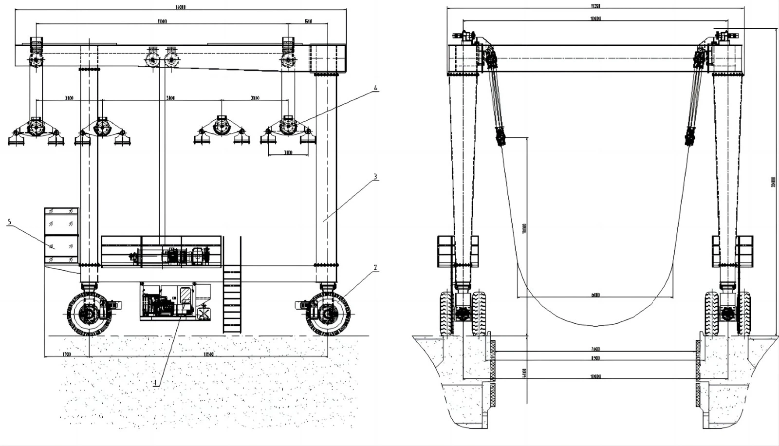
Produktparametere

Skisse

Fordeler
Mobile båtheiser tilbyr flere fordeler for marinaer, verft og anlegg ved vannkanten som er involvert i båthåndtering og vedlikehold. Her er noen viktige fordeler ved å bruke mobile båttaljer:
- Allsidighet: Mobile båttaljer er allsidige og kan håndtere et bredt spekter av båtstørrelser og -typer. De er egnet for løfting og flytting av båter med forskjellig form og vekt, noe som gjør dem tilpasset de ulike behovene til marinaer og båtverft.
- Plasseffektivitet: Mobile båtløftere krever ikke permanent infrastruktur som faste kraner eller båtløftere. Dette gjør dem til en plasseffektiv løsning, som lar marinaer maksimere bruken av tilgjengelig plass til andre formål.
- Manøvrerbarhet: Utstyrt med hjul eller belter, er mobile båttaljer svært manøvrerbare. Noen modeller er til og med selvgående, noe som gjør det mulig for operatører å enkelt navigere gjennom trange områder i en marina eller båtverft.
- Kostnadseffektiv: Sammenlignet med fast infrastruktur er mobile båtheiser ofte mer kostnadseffektive å installere. De krever ikke omfattende konstruksjon eller vesentlige modifikasjoner av anlegget, noe som gjør dem til et mer økonomisk valg for båthåndtering.
- Tidseffektivitet: Mobil båtløfter muliggjør rask og effektiv sjøsetting, henting og transport av båter. Dette kan redusere behandlingstiden betydelig for rutinemessig vedlikehold, reparasjoner og andre båtrelaterte aktiviteter.
- Tilpasningsevne til ulike terreng: Mobiliteten til disse taljene gjør at de kan operere på ulike terreng, inkludert grus, betong eller til og med ujevne overflater. Denne tilpasningsevnen er spesielt verdifull på steder med variert landskap.
- Væruavhengig drift: Mobile båttaljer er designet for å fungere under forskjellige værforhold, noe som muliggjør båthåndtering året rundt. Dette sikrer at vedlikehold og service kan fortsette selv under ugunstig vær.
- Tilpasningsalternativer: Produsenter tilbyr ofte tilpasningsmuligheter for å møte spesifikke anleggskrav eller unike båtdesign. Denne fleksibiliteten gjør at anlegg kan skreddersy taljen til deres spesifikke behov.
- Redusert vedlikehold av infrastruktur: Siden mobile båtløftere ikke er avhengige av fast infrastruktur som kraner eller heiser, er det vanligvis mindre vedlikehold som kreves for selve utstyret. Dette kan føre til kostnadsbesparelser på lang sikt.
- Fjernbetjening: De fleste mobile båttaljer kommer med fjernkontrollfunksjoner, som gjør det mulig for operatører å kontrollere taljen på avstand. Dette kan øke sikkerheten og presisjonen under båthåndteringsoperasjoner.

applikasjon
Mobile båttaljer finner ulike bruksområder i den marine industrien, og dekker ulike behov knyttet til båthåndtering, vedlikehold og lagring. Her er noen vanlige bruksområder for mobile båttaljer:
- Utsetting og henting av båter: Mobile båttaljer brukes ofte til å sette ut båter i vannet og hente dem. Dette er en nøkkelapplikasjon i marinaer og båtverft der båter må flyttes inn og ut av vannet regelmessig.
- Båttransport i en marina: Disse taljene brukes til å transportere båter i en marina, spesielt mellom forskjellige områder som lagringsanlegg, vedlikeholdskaier og utsettingsramper. Deres mobilitet gir mulighet for effektiv båtbevegelse uten å stole på fast infrastruktur.
- Rutinemessig vedlikehold og reparasjoner: Mobile båtløftere spiller en avgjørende rolle i rutinemessig vedlikehold og reparasjoner. Ved å løfte båter opp av vannet gir de enkel tilgang til skroget for oppgaver som maling, rengjøring, inspeksjoner og reparasjoner av propeller eller andre undervannskomponenter.
- Vinterlagring: Mobile båtheiser brukes ofte i marinaer og båtverft for å løfte båter opp av vannet for vinterlagring. Dette bidrar til å beskytte båter mot virkningene av iskaldt vann, vekst av havkake og andre problemer forbundet med langvarig eksponering for elementene.
- Transport mellom marinaer eller verft: Mobile båtløftere med veitransportfunksjoner brukes til å transportere båter mellom ulike marinaer, båtverft eller til og med over land for å nå bestemte steder.
- Nye båtinstallasjoner: Når nye båter leveres til en marina eller forhandler, kan mobile båtheiser brukes til å løfte båtene fra transportfartøy og plassere dem i vannet eller anviste lagringsområder.

Produksjonsprosedyre
- Design og ingeniørfag: Produksjonsprosessen begynner med design- og prosjekteringsfasen. Ingeniører jobber med å lage detaljerte planer og spesifikasjoner for den mobile båtløfteren. Dette inkluderer å bestemme lastekapasitet, dimensjoner, strukturell design og type løftemekanisme som skal brukes.
- Materialvalg og fremstilling: Når designet er ferdig, velges materialer basert på faktorer som styrke, holdbarhet og motstand mot korrosjon. Rammen og nøkkelkomponentene er vanligvis laget av materialer som høyfast stål eller aluminium. Disse materialene kuttes, formes og produseres i henhold til designspesifikasjonene.
- Produksjon av løftemekanismer: Løftemekanismen er en kritisk komponent i den mobile båtløfteren. Avhengig av design kan dette innebære produksjon av vinsjer, trinser, hydrauliske sylindre eller andre komponenter som bidrar til løfting og senking av båten.
- Komponentproduksjon: Andre komponenter, som hjul, belter, stropper og styresystemelementer, produseres separat. Disse komponentene er ofte laget med høy presisjon for å sikre jevn drift og sikkerhet.
- Overflatebehandling:For å beskytte taljen mot de korrosive effektene av det marine miljøet, gjennomgår komponentene overflatebehandlingsprosesser. Dette kan inkludere påføring av beskyttende belegg, for eksempel galvanisering eller spesialiserte malinger av marinekvalitet.
- montering: De enkelte komponentene monteres deretter i henhold til designspesifikasjonene. Rammen er konstruert, og ulike komponenter, inkludert løftemekanisme, kontrollsystem, hjul eller belter, og sikkerhetsfunksjoner, er integrert i taljen.
- Kvalitetskontroll og testing:Kvalitetskontroller utføres på ulike stadier av monteringsprosessen for å sikre at hver komponent oppfyller de spesifiserte standardene. Når taljen er ferdig montert, gjennomgår den strenge tester. Dette inkluderer lasttesting for å verifisere løftekapasiteten, funksjonstester for kontrollsystemet og sikkerhetstester for å sikre at alle sikkerhetsfunksjoner fungerer som de skal.
- Installasjon av valgfrie funksjoner:Avhengig av spesifikasjonene og tilpasningsalternativene, kan tilleggsfunksjoner som fjernkontroll, justerbare armer eller spesialutstyr installeres i denne fasen.
- Siste inspeksjon:En siste inspeksjon gjennomføres for å sikre at hele den mobile båttaljen oppfyller sikkerhetsstandarder, designspesifikasjoner og kvalitetskrav. Eventuelle nødvendige justeringer eller korreksjoner gjøres på dette stadiet.
- Frakt og installasjon:Når den mobile båttaljen har bestått alle inspeksjoner og tester, er den klargjort for frakt til kundens lokasjon. Ved ankomst er den installert og idriftsatt av utdannede teknikere. Installasjon kan innebære å forankre taljen til et egnet fundament eller sikre at den er klar til bruk på ulike typer overflater.

Verkstedvisning
Selskapet har installert en intelligent utstyrsadministrasjonsplattform, og har installert 310 sett (sett) med håndterings- og sveiseroboter. Etter fullføringen av planen vil det være mer enn 500 sett (sett), og nettverkshastigheten for utstyret vil nå 95%. 32 sveiselinjer er tatt i bruk, 50 er planlagt installert, og automatiseringsgraden for hele produktlinjen har nådd 85 %.





Populære tags: mobil båt heise, Kina mobile båt heise produsenter, leverandører, fabrikk
Du kommer kanskje også til å like
Sende bookingforespørsel























